Large Deck Geometric Design
The floors of large ballrooms have designs inlaid into them. Why not a deck?

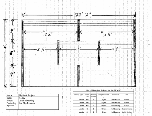
A Customer called who is having a deck built. She wanted to have a pleasant design integrated as the space is so large. In addition, she wanted to keep costs under control by buying 8 and 10 foot lengths. During the planning phase, simple additions create a dramatic finished look.
We developed the design below to meet her needs. The decking runs horizontally with a frame surrounding it. In addition, the center space shows an geometric design. When the customer completes the deck we are hoping to get photos.
Another option is to accent the deck with another type of wood. In this example, the Jatoba could be framed with Ipe or Cumaru Rosa. While the below is a large deck, the ideas can be used in many applications.
Shipping Information

Shipping Locations
| Area | Transit Time |
| Northeast States | 1 to 3 days |
| Southern States | 1 to 3 days |
| Midwest States | 2 to 5 days |
| West coast | 1 to 3 days |
| European Countries | 3 weeks |
Calculators
Coverage Area (SF)
Calculation Results
| Area (SF) | 0.00 |
| Waste (SF) 10% | 0.00 |
| Total SF | 0.00 |
Square Feet to Linear Feet
Result
Linear Feet: 0.00
Board Feet Calculator
Calculation Results
| Board Feet (BF) | 0.00 |
| Linear Feet (LF) | 0.00 |
| Square Feet (SF) | 0.00 |